Leave a Message

By providing your contact information to The Patrick Dolan Team , your personal information will be processed in accordance with The Patrick Dolan Team 's Privacy Policy. By checking the box(es) below, you consent to receive communications regarding your real estate inquiries and related marketing and promotional updates in the manner selected by you. For SMS text messages, message frequency varies. Message and data rates may apply. You may opt out of receiving further communications from The Patrick Dolan Team at any time. To opt out of receiving SMS text messages, reply STOP to unsubscribe.

Thank you for your message. We will be in touch with you shortly.

Explore Our Properties

Property Description

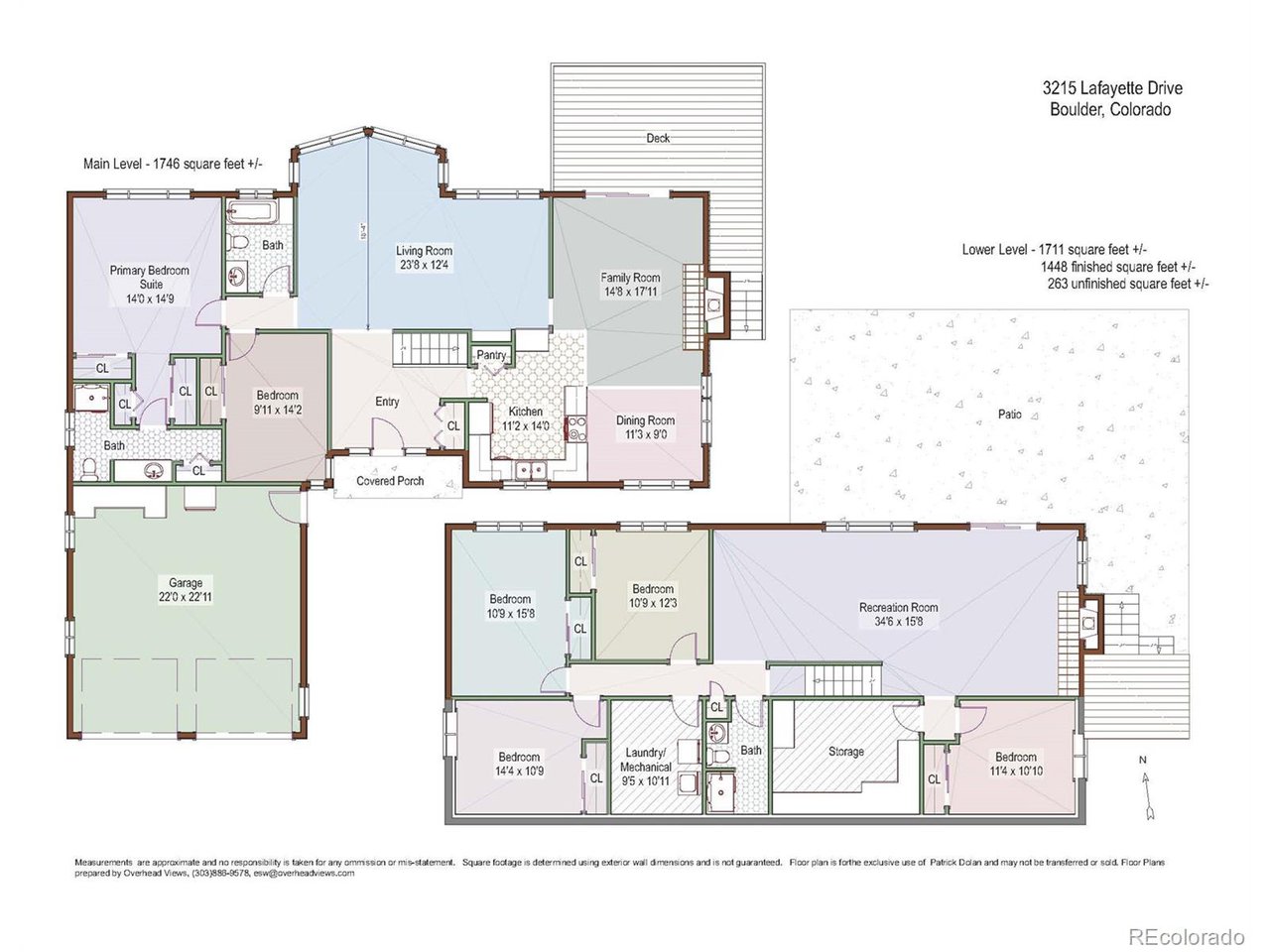
Opportunity Knocks!! Step inside to Stunning, Panoramic Flatiron & City Views from this ranch-style home with a walkout lower level on a nearly 1/2 ACRE Lot on one of South Boulder's most desired streets. Boasting some of the best views Boulder has to offer and overlooking Viele Lake there are endless possibilities in this well maintained home that is a blank slate for remodel, re-build or just move-in now. The main level is laid out well with views from nearly every room & features a spacious living area with large picture windows & vaulted ceilings, kitchen/dining area that opens to a cozy family room with fireplace and access to a newer back deck. 2 main floor bedrooms & 2 bathrooms including the primary bedroom with en-suite bath. The walkout lower level features a large rec room, 4 additional bedrooms, bath & wonderful back patio. With world-class trails just a short walk away including easy access to the Shanahan Ridge trailhead, don't miss your chance to own this special home and experience the best of Boulder living and Colorado lifestyle.

Overview

Property Status
Sold
Lot Size
0.46 Acres
MLS ID
3009694
Property Type
Residential
Year Built
1975

Features & Amenities

View Description
Mountain(s), City, Water
Stories
1
Garage Spaces
2.0
Water Source
City
Utilites
Electricity Available, Cable Available
Roof
Other
Lot Features
Sloping Lot, House Faces South, Paved
Heat Type
Hot Water, Baseboard
Air Conditioning
Central Air
Fireplace
Family Room, One
Appliances
Self Cleaning Oven, Dishwasher, Refrigerator, Washer, Dryer, Microwave, Disposal, Fire Alarm
Other Interior Features
Cathedral Ceiling(s), Open Floorplan
Sewer
Public Sewer
Other Exterior Features
Sprinkler System
Elementary School
Mesa
Middle School
Southern Hills
High School
Fairview
School District
Boulder Valley Dist RE2
Sales Price
$2,575,000
Real Estate Tax
$11,762/yr
Zoning
Resi

Downloads

3215 Lafayette Dr

Schedule a Tour

We would love to help you see this beautiful home! As a full-service brokerage, we can help you tour. Please submit an offer, and answer questions about the buying process.

Thank you

for your interest in 3215 Lafayette Dr, Boulder, CO 80305

3215 Lafayette Dr
Navigate

.

I'm Interested In

3215 Lafayette Dr

or
  • CallPatrick Dolan

    License #EA266071

    (303) 441-5642
  • Follow Us On Instagram