Leave a Message

By providing your contact information to The Patrick Dolan Team , your personal information will be processed in accordance with The Patrick Dolan Team 's Privacy Policy. By checking the box(es) below, you consent to receive communications regarding your real estate inquiries and related marketing and promotional updates in the manner selected by you. For SMS text messages, message frequency varies. Message and data rates may apply. You may opt out of receiving further communications from The Patrick Dolan Team at any time. To opt out of receiving SMS text messages, reply STOP to unsubscribe.

Thank you for your message. We will be in touch with you shortly.

Explore Our Properties

Property Description

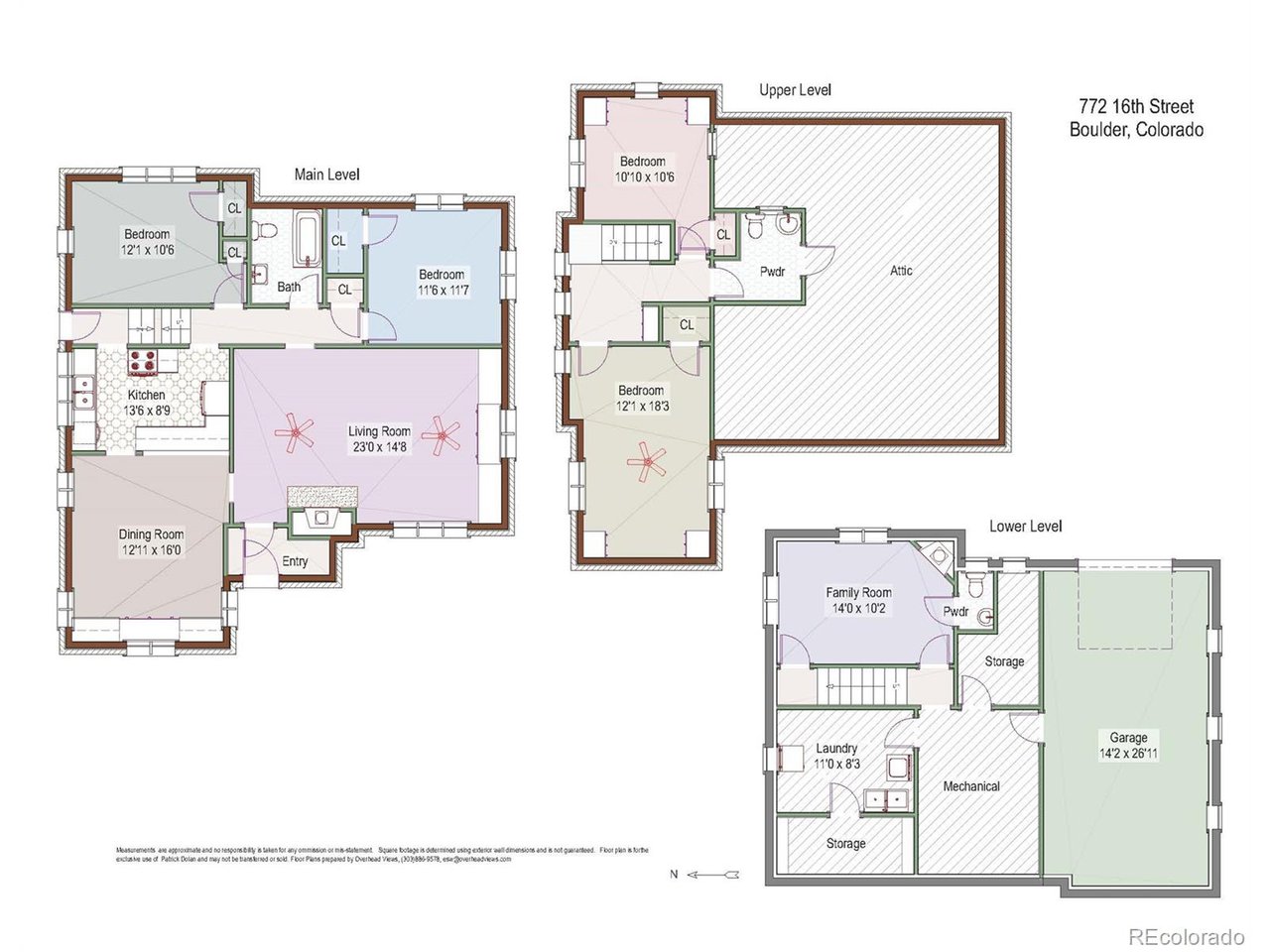
OPPORTUNITY KNOCKS! ATTN INVESTORS...This 1927 built bungalow is being SOLD STRICTLY AS-IS thru an Estate Sale. Although in fairly original condition, and in need of repairs, the location is Prime Time in lower Chautauqua/University Hill. Set back on a 6,160 SQFT lot with an original stone exterior and alley access to the over-sized 1-car attached garage, this rare offering presents options for you to create or build your dream home in a sought-after location and tree-lined street just blocks from Chautauqua Park, CU's Campus, world-class hiking/biking trails & more. The main floor has original hardwood flooring, classic built-ins, a large living room with wood burning fireplace, 2 bedrooms, full bath and decent sized kitchen/dining area. Upstairs are 2 additional bedrooms & power bath. The lower level of the home has a family room with wood burning stove, a 2nd powder bath, great storage space & access to the attached garage & fenced backyard. Embrace the chance to improve this special property in an unbeatable location!

Overview

Property Status
Sold
Lot Size
6,098.4 Sq.Ft.
MLS ID
8204605
Property Type
Residential
Year Built
1927

Features & Amenities

Architecture Styles
Cottage, Fixer-Upper
View Description
Mountain(s)
Stories
2
Garage Spaces
1.0
Water Source
City
Utilites
Natural Gas Available, Electricity Available, Cable Available
Roof
Other
Lot Features
House Faces West, Paved
Heat Type
Forced Air, Wood Stove
Air Conditioning
Central Air, Ceiling Fan(s)
Fireplace
Living Room, One
Appliances
Self Cleaning Oven, Dishwasher, Refrigerator, Washer, Dryer
Sewer
Public Sewer
Elementary School
Flatirons
Middle School
Manhattan
High School
Boulder
School District
Boulder Valley Dist RE2
Sales Price
$1,010,000
Real Estate Tax
$9,275/yr
Zoning
Resi

Downloads

772 16th St

Schedule a Tour

We would love to help you see this beautiful home! As a full-service brokerage, we can help you tour. Please submit an offer, and answer questions about the buying process.

Thank you

for your interest in 772 16th St, Boulder, CO 80302

772 16th St
Navigate

.

I'm Interested In

772 16th St

or
  • CallPatrick Dolan

    License #EA266071

    (303) 441-5642
  • Follow Us On Instagram